Maxi Royal 70mm

Vizyonunuz için…

Yalıtım özellikleri, farklı renk seçenekleri ve statik dayanım değerleriyle; eski binalar, yeni inşaatlar, yüksek iş merkezleri ve konut uygulamalarında kullanılmak için tasarlanmıştır.

  • Maksimum ses ve ısı yalıtımı sağlamak için 4, 20, 24, 28, 34, 40mm aralığındaki nitelikli camlarla birlikte kullanılması mümkündür.
  • İlave bir odacık ve hava duvarı sayesinde pencere yalıtımına ek katkı sağlamaktadır.
  • Alüminyum kapak uygulaması sayesinde dış yüzeyde estetik görüntü sağlamaktadır.
  • Alüminyum kapaklar, PVC profille birlikte üstün yalıtım katkısı sağlaması için özel olarak tasarlanmıştır.
  • Alüminyum kapak uygulamasıyla birlikte sunduğu geniş renk yelpazesiyle; rezidans görünümlü özel konut ve iş merkezleri projelerinde ve özel tasarımlı dış cephelerde tercih edilen uygulama profilleridir.
  • Beyaz profil renklerine ek olarak krem ve gri gövdeli renk seçenekleri bulunmaktadır.
  • Düz kanat ve fugalı kanat uygulamaları ile farklı görünüm imkânı sunmaktadır.
  • Pervazlı kasa profili ile iç yüzeyde estetik görünümlü duvar-doğrama birleşim bütünlüğü sağlamaktadır.
  • Yüksek katlı binalardaki rüzgar yüküne karşı mukavemet sağlayacak şekilde profil detayları tasarlanmıştır.
  • Kendinden contalı profili sayesinde hızlı üretim avantajı sunmaktadır.
  • Kapılar için daha alçak uygulama imkanı sunan ısı yalıtımlı alüminyum eşik profil seçenekleri bulunmaktadır.
  • Su tahliyesini kolaylaştıran tasarımı sayesinde, su sızdırmazlığı yüksektir.
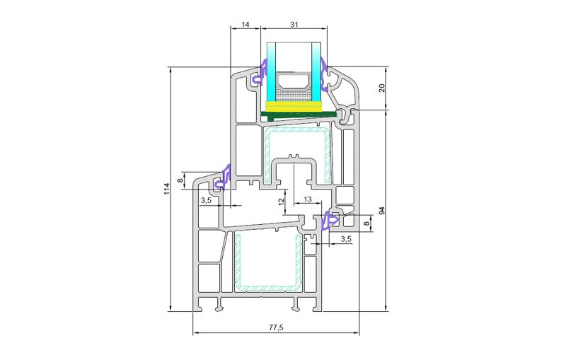
Ürün ölçüleri
  • Profil Genişliği: 70 mm
  • Odacık Sayısı: 5,6 odacıklı
  • Profil Sınıfı: B sınıfı
  • Conta Sistemi: İç /dış conta
  • Conta Tipi/ Rengi: TPE / Renk: Siyah ya da gri
  • Cam Kalınlığı: 4, 14, 20, 24, 28, 29, 34, 40 mm
Ürün renkleri
PVC Profil Renkleri:
  • Renk Seçeneği
    Beyaz
  • Renk Seçeneği
    Gri
  • Renk Seçeneği
    Krem

Lamine Renk/Desen Seçenekleri:
  • Renk Seçeneği
    Antrasit Gri (7016)
  • Renk Seçeneği
    Koyu Meşe
  • Renk Seçeneği
    Budaklı Winchester
  • Renk Seçeneği
    Düz Antrasit (49122)
  • Renk Seçeneği
    Antik
  • Renk Seçeneği
    Altın Mese (Kızıl)
  • Renk Seçeneği
    Quartz Gri (7039)
  • Renk Seçeneği
    Winchester (49252)
  • Renk Seçeneği
    Trompet (Vizon)
  • Renk Seçeneği
    Ceviz
  • Renk Seçeneği
    Krem (1379)
  • Renk Seçeneği
    Maun
Ürün Performansı
  • Profil Isı Geçiş Katsayısı: 1,45 W/m².K
  • Cam Isı Geçiş Katsayısı: 31 (-1,-6) (ara katmansız)
  • Pencere Isı Geçiş Katsayısı: Kapı için 2,53 W/m².K; Pencere için 2,52 W/m².K
  • Hava Geçirgenliği: 4
  • Su Yalıtımı: Balkon kapısı için E1950 /E1050; Pencere için E 900/E1050/9A
  • Rüzgâr Yükü Dayanımı: C5/B5; Pencere için C2A5.C2/B3
  • Akustik Performans: 31[-1;-6] dB
Ürün Uygulama Alanları

Ürünlerle ilgili uygulama seçeneklerinin yer aldığı PDF dokümanını görmek için tıklayınız.

HİZMETLERİMİZ